Loading...
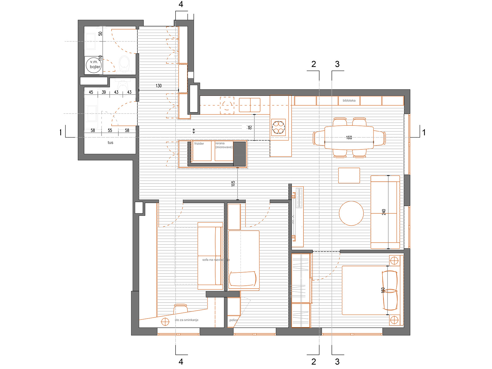
Versace Apartment
Houses & Apartments

Versace Apartment

  • Year: 2018
  • Location: Lucerne, Switzerland
  • Intervention: Conceptual design, main project
  • Phase: Completed
The specificity of this minimalistic design suite primarily lies in the unusual mixture of colors and shapes used in the interior: mainly white is embellished with golden details that leave the impression of overall hi-end look, whereas the modern minimalist interior lines include details such as golden antique furniture dating back to the 18th century.
Furthermore, we took into account the relationship of the owner with the Versace brand, after which
we applied the recognizable pattern on various elements, thus reflecting the personal trait that suits the affinity of the owner.

Versace Apartment

Versace Apartment

Versace Apartment

Versace Apartment

Versace Apartment

Versace Apartment

Versace Apartment

Versace Apartment

Versace Apartment